€ 170.000
Appartamento in vendita a Roma Acilia

Rif: IMMO-124862085
  • 21 Foto
  • 1 Planimetrie
  • Mappa

Descrizione

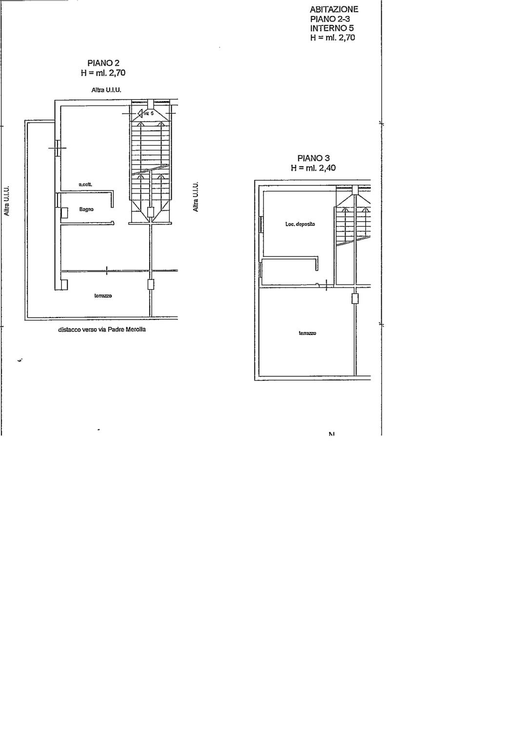
**Appartamento in Vendita - Zona Acilia via Padre Merolla!** In una zona ben servita e tranquilla, questo splendido appartamento bilivello al secondo piano è la soluzione ideale per chi cerca comfort e modernità. Con una superficie commerciale di 80 m², l'immobile è composto da un ampio soggiorno con angolo cottura, 2 camere da letto accoglienti e due bagni eleganti. La luminosità degli spazi è garantita dall'esposizione a sud-ovest, creando un'atmosfera calda e invitante. Il balcone angolare e il Terrazzo offrono uno spazio perfetto per rilassarsi all'aria aperta, mentre il posto auto scoperto aggiunge un ulteriore valore a questa proposta. Situato in un edificio in cortina di recente costruzione (2019), l'appartamento non è mai stato abitato e sarà libero da subito, pronto per essere personalizzato secondo i propri gusti. La posizione strategica permette di avere supermercati, asili e ristoranti nelle immediate vicinanze, rendendo la vita quotidiana comoda e piacevole. Non perdere l'occasione di visitare questo immobile nuovo e completamente ristrutturato, dotato di riscaldamento a pompa di calore. Contattaci per una visita! *Nello stesso stabile disponiamo di un altro immobile* VUOI VENDERE IL TUO IMMOBILE MA NON SAI QUANTO VALE? NON ESITARE A CONTATTARCI UN NOSTRO ESPERTO DI MERCATO TI FARA' UNA VALUTAZIONE GRATUITA DELL'IMMOBILE.

Richiedi maggiori informazioni

Autorizzazione al trattamento dei dati personali+
Dichiaro di aver letto l'informativa sulla privacy ed accetto le condizioni d'utilizzo del servizio.
Riempi il campo con il codice riportato nell'immagine*
Codice Captcha

Dettaglio immobile

Contratto Vendita
Rif IMMO-124862085
Prezzo € 170.000
Provincia Roma
Comune Roma
Zona Acilia
Indirizzo Via Padre Merolla 10
Superficie 80 mq
Vani 3
Camere 2
Bagni 2
Classe energetica Non indicata
Riscaldamento autonomo
Condizioni ottime condizioni
Anno di costruzione 2019
Ascensore no
Parcheggio si
Cucina angolo cottura
Balcone si
Terrazza si
Mansarda 30 mq

Consistenze

Descrizione Superficie Sup. comm.
Principali
Immobile - 2° piano 50 Mq 50 Mqc
Mansarda - 3° piano 30 Mq 30 Mqc
Totale 80 Mqc

Contattaci

Autorizzazione al trattamento dei dati personali+
Dichiaro di aver letto l'informativa sulla privacy ed accetto le condizioni d'utilizzo del servizio.
Riempi il campo con il codice riportato nell'immagine*
Codice Captcha

Bottiglieri Immobiliare

via del Torraccio di Torrenova, 213
00133 ROMA (RM)
C.F.: 09140211005
P.IVA: 09140211005
Condividi Linkedin Whatsapp Stampa
Stampa